Contact
Home
Model Homes
The Models
Custom Homes
Our Projects
Our Standards
Dendor Standards
About Us
Contact
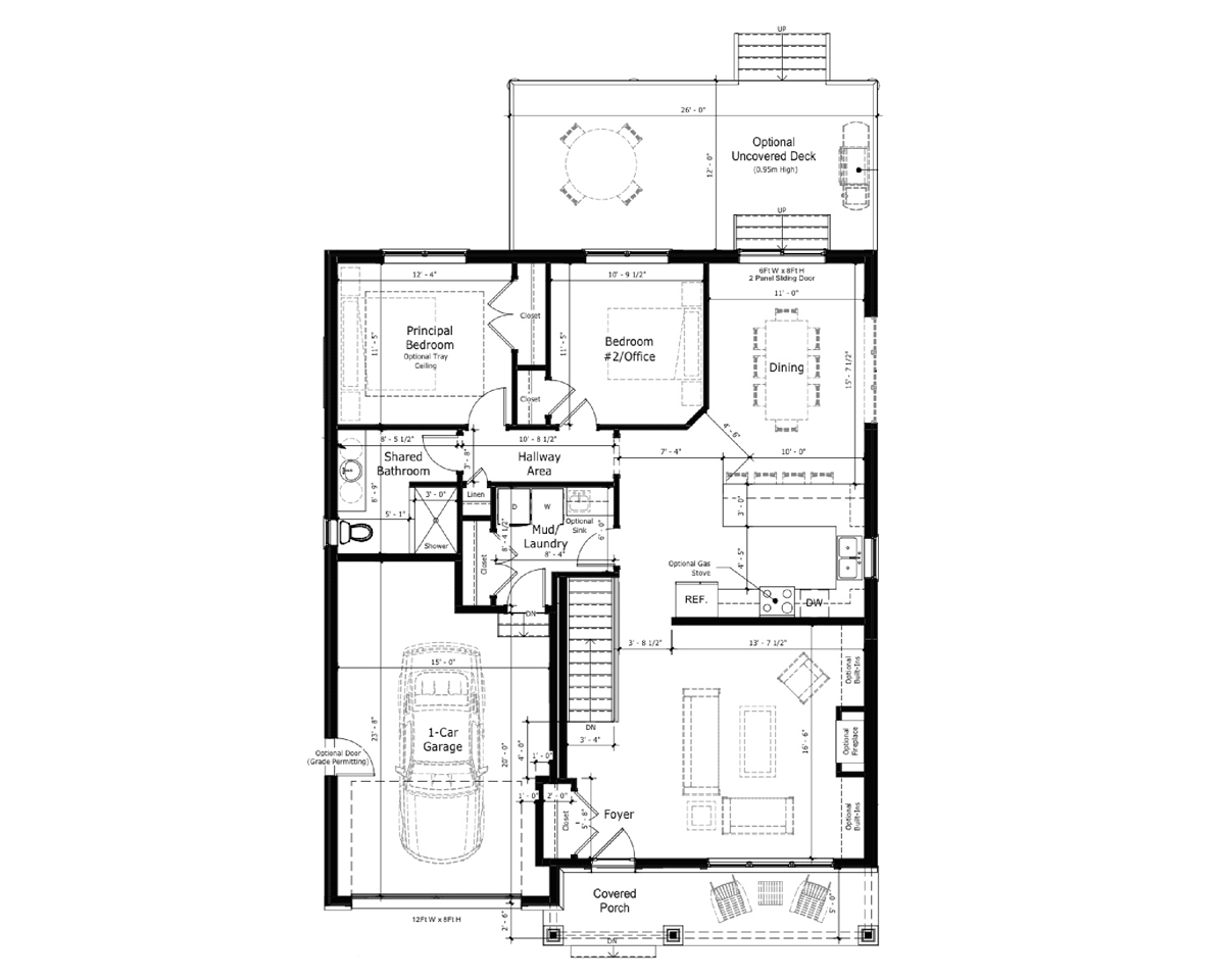
The Ribble
Square Footage
1389 ft²
Download Floorplans
Download PDF